ARCH 2101: Design III  // Cornell University School of Architecture, Art, and Planning 
Spring 2021 //  Professor: Kana Arioka

Within the context of Ithaca, New York, the studio briefed us to design a home for the client of our choice. Fitting to the demographic of a larger college town, this home for short term professors becomes a solution for short term housing.

Red Plus Program: The plus program can be defined as a communal library/ office space where the professors and students can collaborate in an academic setting sunken into the ground creating a cozy and sheltered environment.

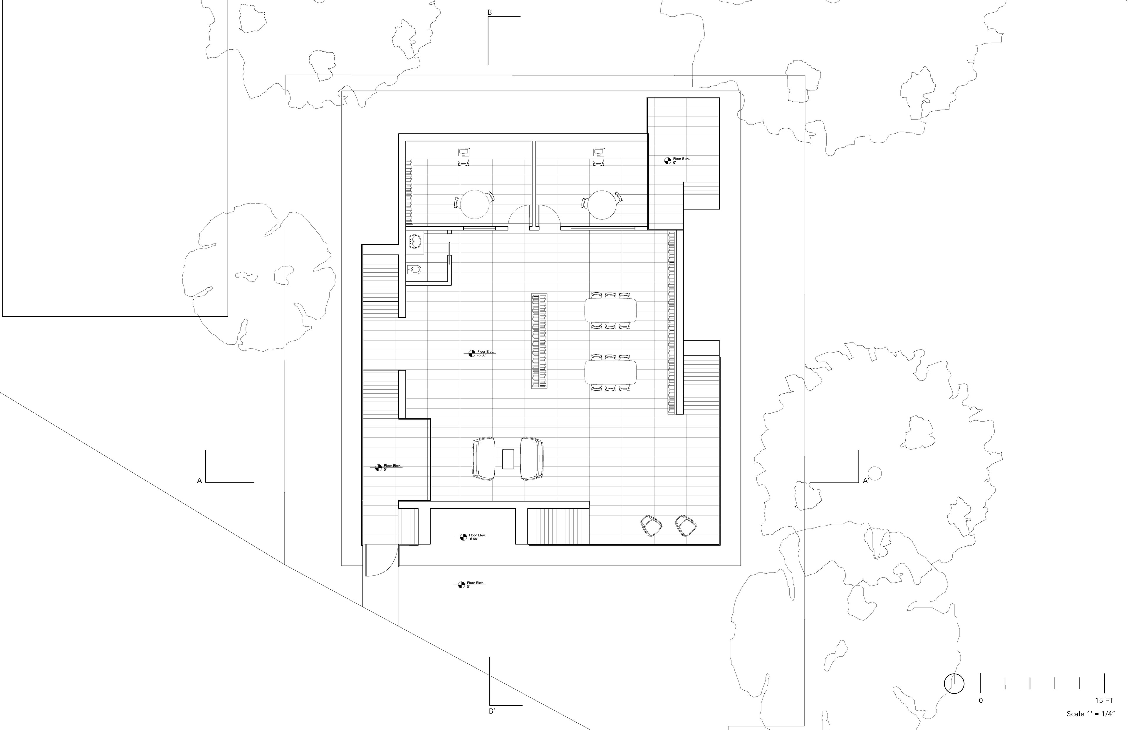
First Floor
First Floor
Second Floor
Second Floor
Third Floor
Third Floor
Section A-A'
Section A-A'
Section B-B'
Section B-B'
Study Models 
Back to Top